The Aspen, Plot 16, High Oakham Ridge, Mansfield

£535,000

See how much I can borrow
  • 4
  • 2
Book a viewing 01623 633633

Do you have a property to Sell?

Book a free, no obligation property valuation.

THE ASPEN, £535,000! PLOTS AVAILABLE 16, 17, 18 & 19!...

Discover contemporary living at its finest with this brand new, three-storey, four-bedroom detached home situated in a highly sought-after area of Mansfield, within the catchment for the well-regarded High Oakham Primary School — a popular choice for families. Designed with modern lifestyles in mind, this impressive property offers versatile and stylish accommodation across all levels.

The ground floor welcomes you with a spacious hallway leading to a study and an additional flexible room that could serve as a guest bedroom or games room, complemented by a convenient shower room.

Upstairs, the heart of the home is revealed — a striking open-plan kitchen, dining and living space, perfect for both everyday living and entertaining. A utility room, separate lounge, and WC complete this beautifully arranged floor.

On the top floor, you’ll find four generously sized bedrooms, including a master with its own ensuite, plus a sleek family bathroom.

Externally, the property benefits from an integral garage, private driveway, and attractive gardens to both the front and rear, offering space to relax and enjoy the outdoors. This exceptional new home combines contemporary design, comfort, and convenience — all within easy reach of Mansfield’s amenities and transport links.

Call today to arrange your viewing and experience this fantastic home for yourself.


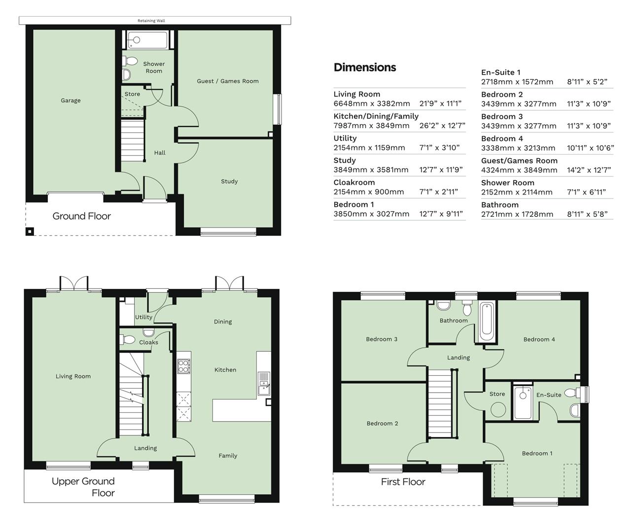
Hall

Fitted storage cupboard located under the stairs and further access into;

Study (3.84m x 3.58m)

Versatile room with a window to the front elevation.

Guest/Games Room (4.32m x 3.84m)

Versatile room offering great versatility to become whatever you desire with a window to the side.

Shower Room (2.16m x 2.11m)

Three piece suite including a hand ash basin, low flush WC and a shower.

Landing

With a window to the front and access into;

Living Room (6.63m x 3.38m)

Spacious reception room with a window to the front and patio doors to the rear, opening onto the garden.

Family Kitchen/Dining Room (7.98m x 3.84m)

Open plan space with fitted cabinetry, worktops, inset sink and a breakfast bar dividing the space. Ample space for your desired furnishings. A window to the front and patio doors opening to the garden.

WC

Fitted with a low flush WC and a hand wash basin.

Landing

Window to the front and leading access into;

Bedroom One (2.72m x 1.57m)

Central heating radiator and a window to the front. Access to an en suite facility.

En Suite (2.72m x 1.57m)

Three piece suite including a hand wash basin, low flush WC and a shower. Window to the side elevation.

Bedroom Two (3.43m x 3.28m)

Central heating radiator and a window to the front elevation.

Bedroom Three (3.43m x 3.28m)

Central heating radiator and a window to the rear elevation.

Bedroom Four (3.33m x 3.20m)

Central heating radiator and a window to the rear elevation.

Bathroom (2.72m x 1.73m)

Three piece family suite comprising of a hand wash basin, low flush WC and a bath. Window to the rear.

Garage

Accessible from the front elevation.

Outside

Private frontage with a double driveway and an integrated garage allowing for secure off road parking. Generous garden to the rear elevation to enjoy all year round.


Floorplan

Floorplan

Location


Contact our

Sales office
Email us 01623 633633 Book a viewing

Contact our

Sales office
Email us 01623 633633 Book a viewing

Mortgage Calculator

£

*This mortgage calculator is provided for general information purposes only. It's intended to provide you with an estimate of your potential mortgage payments and does not constitute an offer of finance or advice. The calculations are based on the information you provide and do not take into account your individual needs and circumstances.

The calculator does not include all the costs you will need to pay when taking out a mortgage. Your actual mortgage payments may be higher or lower than the estimates provided by this calculator. The interest rates used in the calculations are subject to change and may not reflect the actual rates available in the market.

Please note that the calculator does not consider changes in interest rates over time, early repayment charges, or any other fees and charges that may apply to your mortgage. You should always seek professional advice before making any financial decisions.

Remember, your home may be repossessed if you do not keep up repayments on your mortgage.

Stamp Duty Calculator

Calculate Your Stamp Duty
£
Results
Stamp Duty To Pay:
Effective Rate:
Tax Band % Taxable Sum Tax