Woodhouse Road, Mansfield

£325,000

See how much I can borrow
  • 3
  • 2
Book a viewing 01623 633633

Do you have a property to Sell?

Book a free, no obligation property valuation.

FALL IN LOVE AT FIRST SIGHT!... Welcome to this delightful three bedroom detached home located in Mansfield. The property is situated in a peaceful neighbourhood, providing a serene environment while still being within easy reach of local amenities, schools, and transport links. This location is ideal for families ensuring that everything you need is just a stone's throw away. Let us tell you more...

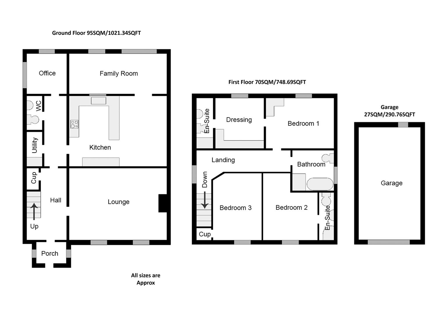
Upon entering the ground floor, you are greeted by a spacious and inviting hallway that sets the tone for the rest of the home. The generous living room boasts ample natural light, creating a warm and welcoming atmosphere, with a log burner fireplace. Adjacent to the living room, you will find a well-appointed kitchen/diner featuring modern appliances and a breakfast bar, making it a joy to prepare meals and entertain. The ground floor also includes a convenient family room, which seamlessly connects to the kitchen, allowing for easy entertaining. Additionally, you will find a versatile office complemented by patio doors. Completing the ground floor is a handy utility and WC.

Venturing upstairs, you will discover three well-proportioned bedrooms, each offering a unique charm and ample space for personalisation. The master bedroom is particularly spacious, providing its very own dressing room and en suite. Bedroom two also benefits from it's en suite whilst there is also a family bathroom just off the landing.

Outside, the property boasts a lovely garden that offers a perfect escape for outdoor activities or simply enjoying the fresh air. The garden is well-maintained and provides a safe space for children to play or for hosting summer barbecues with friends and family. There is also secure off-street parking available via private gates. This delightful home on Woodhouse Road is a wonderful opportunity for those seeking a spacious and comfortable living environment in a desirable location.

Call now to make this house your forever home!


Porch

Windows to either side with access into the main hallway.

Hall

Spacious entrance hallway with a cupboard located under the stairs and further access into;

Lounge

This is a bright room with carpeted flooring, central heating radiator and a brick feature wall surrounding a log burner fireplace. Windows to the front allowing a wealth of natural daylight to flow through.

Kitchen

Modern kitchen with light tiled flooring and recessed ceiling spotlights. It features white built-in cabinets, light wood countertops, and a breakfast bar. Integrated appliances include an oven, hob, and extractor hood, with a sink positioned under a window. Ample dining space accompanied by wooden double doors opening through to the family room.

Family Room

Bright and airy reception room offering great versatility to use however you desire. Window and patio doors opening to the rear elevation.

Office

Excellent space to work from home with windows and patio doors opening to the side.

Utility

Handy storage space with a fitted worktop and further space and plumbing for a washing machine/tumble dryer.

WC

Fitted with a hand wash basin and a low flush WC.

Landing

Window to the side and leading access into;

Bedroom One

Carpeted flooring, central heating radiator and a window to the rear. Not to mention a large dressing room leading into the en suite.

Dressing Room

Carpeted room with fitted wardrobes and ample room for your desired furnishings and a window to the rear elevation.

En Suite

Tiled en suite comprising of a three piece suite, including a hand wash basin, low flush WC and a shower cubicle.

Bedroom Two

Carpeted flooring, central heating radiator, en suite and a window to the front elevation.

En Suite

Three piece suite including a hand wash basin, low flush WC and a shower.

Bedroom Three

Carpeted flooring, central heating radiator and a window to the front elevation.

Bathroom

Four piece bathroom with a hand wash basin, low flush WC, bath and a separate shower cubicle. Window to the side elevation.

Garage

Detached single garage allowing for secure off road parking.

Outside

Set behind secure gates, this brick-built home features a spacious block-paved driveway with off-road parking and a detached garage, offering a smart and practical frontage. The rear garden boasts a raised lawn and fence surround.


Floorplan

Floorplan

EPC

EPC for Woodhouse Road, Mansfield

Location


Contact our

Sales office
Email us 01623 633633 Book a viewing

Contact our

Sales office
Email us 01623 633633 Book a viewing

Mortgage Calculator

£

*This mortgage calculator is provided for general information purposes only. It's intended to provide you with an estimate of your potential mortgage payments and does not constitute an offer of finance or advice. The calculations are based on the information you provide and do not take into account your individual needs and circumstances.

The calculator does not include all the costs you will need to pay when taking out a mortgage. Your actual mortgage payments may be higher or lower than the estimates provided by this calculator. The interest rates used in the calculations are subject to change and may not reflect the actual rates available in the market.

Please note that the calculator does not consider changes in interest rates over time, early repayment charges, or any other fees and charges that may apply to your mortgage. You should always seek professional advice before making any financial decisions.

Remember, your home may be repossessed if you do not keep up repayments on your mortgage.

Stamp Duty Calculator

Calculate Your Stamp Duty
£
Results
Stamp Duty To Pay:
Effective Rate:
Tax Band % Taxable Sum Tax